Verkocht:Ordermolenweg 25, 7312 SC Apeldoorn - Foto
Verkocht
+33

Ordermolenweg 25 7312 SC Apeldoorn

  • Woonhuis
  • 5 kamers
  • 4 slaapkamers
  • 2 badkamers
  • Bouwjaar 1965
  • 241 m² perceeloppervlakte
  • 89 m² gebruiksoppervlakte
  • C Energielabel C

Beschrijving

In het fraaie Apeldoorn West in een rustige en groene wijk met veel (half)vrijstaande woningen gelegen twee-onder-één kapwoning op bijna 250 m2 eigen grond.

LET OP: De oppervlakte van de zolderverdieping (circa 15 m2) mag helaas volgens de huidige regelgeving niet worden meegeteld in het totale gebruiksoppervlakte wonen. Deze verdieping is echter stahoog en volledig bruikbaar.

Deze tweekapper ligt rustig, maar nabij allerlei voorzieningen. Buiten dat het in Apeldoorn natuurlijk altijd vorstelijk wonen is zo aan de rand van de Veluwe, tref je hier vlakbij een bushalte, zit je snel op de A1 en doe je de boodschappen in het winkelcentrum dat op loopafstand ligt. Sporten kun je in het nabijgelegen sportpark: hockeyen bij AMHC, honkbal bij Robur, tennis bij Tepci, voetbal bij Victoria Boys of heerlijk hardlopen in de fraaie bossen aan de westkant. Maar ook de scouting is vlakbij. Een honden uitlaatplaats en honden-los-bos liggen op loopafstand. Op dit moment is het huis geschikt voor eenvoudige mantelzorg, maar is eenvoudig terug te brengen naar een eengezinswoning met 4 slaapkamers.

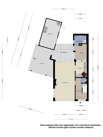
De indeling van de woning is als volgt: voortuin, entree woning, hal, kelderkast met toegang tot de kruipruimte en modern toilet.

Ruime en zeer lichte woonkamer met schuifpui naar de tuin en toegang tot de keuken. Deze halfopen keuken is voorzien van diverse inbouwapparatuur. Aansluitend de bijkeuken met toegang naar de badkamer (op de eerste verdieping is er ook een badkamer) met douche, wastafel en opstelplaats wasmachine en droger en toegang tot de tuin.

Eerste verdieping: overloop, zeer royale slaapkamer van circa 25 m2 (dit waren oorspronkelijk 2 ruime slaapkamers en dit is ook eenvoudig weer te realiseren). Via de overloop toegang tot de keuken welke toegang biedt tot het toilet en tot het balkon. Ook is er op deze verdieping een badkamer met (zit)bad/douchecombinatie.

Tweede verdieping: voorzolder met Velux-raam, bergruimte achter de knieschotten, opstelplaats c.v.-ketel en wastafeltje. Ruime en lichte slaapkamer met dakkapel en eveneens diverse bergruimtes.

Buiten: via de schuifpui of de bijkeuken heb je toegang tot de fijne, zonnige tuin met o.a. een veranda, diverse borders, moestuin en terras. Er is ook toegang tot de royale berging en een zij-ingang via de carport. Er kunnen meerdere auto’s worden geparkeerd op de eigen oprit.

Op zoek naar een fijne tweekapper in Apeldoorn West? Neem dan contact op voor een bezichtiging.

Bijzonderheden:
-bouwjaar 1965
-woonoppervlakte 89 m2
-perceeloppervlakte 241 m2
-de woning is geheel voorzien van dubbel glas
-energielabel C
-verwarming alsmede warm water middels c.v.-combiketel ATAG 2020
-parkeerplaats voor meerdere auto’s plus een carport

Aanvaarding in overleg.

Kaart

Kenmerken

Overdracht

Referentienummer
210
Vraagprijs
€ 450.000,- k.k.
Status
Verkocht
Aanvaarding
In overleg
Aangeboden sinds
Dinsdag 4 maart 2025
Laatste wijziging
Zaterdag 7 juni 2025

Bouw

Type object
Woonhuis, eengezinswoning, twee onder een kap woning
Soort bouw
Bestaande bouw
Bouwperiode
1965
Dakbedekking
Dakpannen
Type dak
Zadeldak
Isolatievormen
Grotendeels dubbel glas
Muurisolatie

Oppervlaktes en inhoud

Perceeloppervlakte
241 m²
Woonoppervlakte
89 m²
Inhoud
372 m³
Oppervlakte overige inpandige ruimten
14 m²
Oppervlakte externe bergruimte
14 m²

Indeling

Aantal bouwlagen
3
Aantal kamers
5 (waarvan 4 slaapkamers)
Aantal badkamers
2 (en 2 aparte toiletten)

Locatie

Ligging
Aan rustige weg
In woonwijk

Tuin

Type
Voortuin
Oriëntering
Noord west
Staat
Goed onderhouden
Tuin 2 - Type
Achtertuin
Tuin 2 - Hoofdtuin
Ja
Tuin 2 - Oriëntering
Zuidoost
Tuin 2 - Heeft een achterom
Ja
Tuin 2 - Staat
Goed onderhouden

Energieverbruik

Energielabel
C

CV ketel

CV ketel
ATAG HR
Warmtebron
Gas
Bouwjaar
2020
Combiketel
Ja
Eigendom
Eigendom

Uitrusting

Aantal parkeerplaatsen
2
Aantal overdekte parkeerplaatsen
1
Warm water
CV-ketel
Verwarmingssysteem
Centrale verwarming
Ventilatie methode
Natuurlijke ventilatie
Badkamervoorzieningen Badkamer 1
Douche
Wastafel
Badkamervoorzieningen Badkamer 2
Douche
Wastafelmeubel
Zitbad
Heeft kabel-tv
Ja
Tuin aanwezig
Ja
Heeft schuur/berging
Ja
Heeft een schuifpui
Ja

Kadastrale gegevens

Kadastrale aanduiding
Hoog Soeren W 813
Perceeloppervlakte
241 m²
Omvang
Geheel perceel