Nieuw in verkoop:Barteweg 15R55, 6718 TH Ede - Foto
Nieuw in verkoop
+24

Barteweg 15R55 6718 TH Ede € 122.500,- k.k.

  • Woonhuis
  • 3 kamers
  • 2 slaapkamers
  • 1 badkamers
  • Bouwjaar 2015
  • 252 m² perceeloppervlakte
  • 44 m² gebruiksoppervlakte
  • Gemeubileerd
  • B Energielabel B

Beschrijving

Dit sfeervolle chalet combineert comfort met een doordachte indeling. De lichte woonkamer en open keuken vormen het hart van de woning, een fijne plek om samen te komen. Twee comfortabele slaapkamers en een moderne badkamer maken het geheel compleet. Het chalet wordt volledig gemeubileerd en gestoffeerd opgeleverd, waardoor je direct kan gaan genieten. Buiten heb je een besloten tuin, omringd door een groene haag. Hier geniet je in alle privacy van rust en natuur of juist van lange zomeravonden. Gelegen op het park ’t Gelloo, tussen Lunteren en Ede, ervaar je hier het beste van twee werelden: rust, ruimte én comfort.

Locatie: Recreatiepark ’t Gelloo biedt een compleet verblijf voor jong en oud, met een breed scala aan faciliteiten. Neem een verfrissende duik in het binnen- of buitenzwembad, doe mee aan sportieve activiteiten of geniet simpelweg van de rust en natuur die het park omringt. Er is altijd iets te beleven! Het chalet ligt in het groene Ede, midden op de Veluwe. Een omgeving die bekend staat om haar prachtige bossen, paarse heidevelden en eindeloze wandel- en fietsroutes. Diverse bezienswaardigheden, gezellige dorpen en praktische voorzieningen zoals winkels en restaurants liggen op korte afstand. Kortom, de ideale uitvalsbasis voor wie natuur, ontspanning en comfort wil combineren.

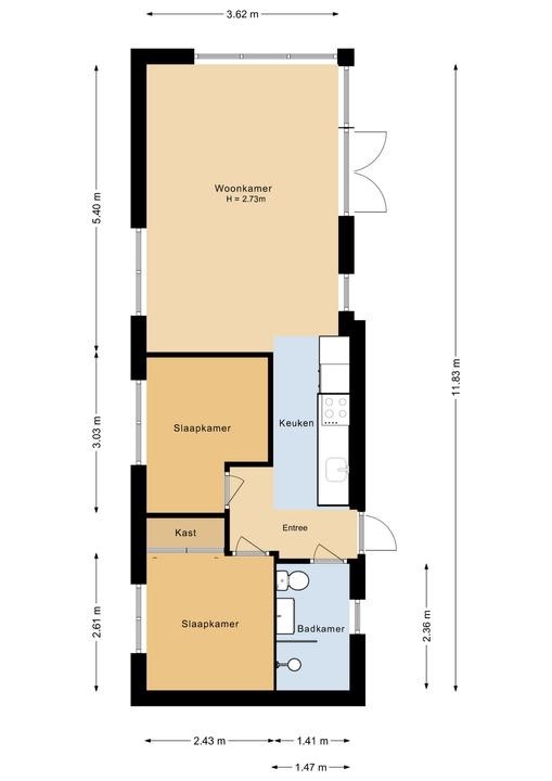
Indeling: Zodra je binnenstapt in dit charmante chalet, ervaar je direct een gevoel van rust en comfort. Vanuit de entree heb je toegang tot twee slaapkamers en een eigentijdse badkamer. Rechts bevindt zich de open keuken die slim ingedeeld is en van alle gemakken voorzien. De rechte opstelling is uitgerust met moderne apparatuur en biedt volop ruimte voor het maken van de lekkerste gerechten. De combinatie van warme, neutrale tinten geeft de keuken een uitnodigende sfeer. Of je nu uitgebreid wilt koken of gezellig wat hapjes klaarmaakt voor de barbecue, hier voelt elke maaltijd als een genietmoment!

De open keuken loopt moeiteloos over in de sfeervolle woonkamer, waar grote raampartijen zorgen voor een prettige lichtinval en een leuk uitzicht op de groene tuin. De ruimte is slim ingericht, met oog voor zowel comfort als functionaliteit. Of je nu neerstrijkt op de bank met een goed boek na een actieve dag in de natuur of gezellig dineert aan de eettafel. Deze woonkamer biedt voor elk moment de juiste sfeer. Dankzij de airco geniet je hier het hele jaar door van een aangenaam binnenklimaat: verkoelend in de zomer, verwarmend in de winter. Een fijne plek om tot rust te komen én om samen te zijn.

Direct bij de entree bevinden zich de twee slaapkamers, beide ingericht met oog voor comfort en rust. De hoofdslaapkamer beschikt over een tweepersoonsbed en een praktische vaste kast. Ideaal voor het netjes opbergen van kleding en persoonlijke spullen. De tweede slaapkamer is praktisch ingedeeld met een eenpersoonsbed én een stapelbed, waardoor er volop slaapplek is voor kinderen of logees. Een fijne, huiselijke sfeer zorgt ervoor dat iedereen hier ontspannen de nacht in gaat.

De badkamer is modern uitgevoerd en voorzien van alle gemakken voor een comfortabele start van de dag. Je vindt hier een ruime inloopdouche, een wastafel met meubel en een toilet. Dankzij het raam geniet je van natuurlijk daglicht en naast mechanische ventilatie ook van frisse ventilatie. Net dat beetje extra voor een ontspannen moment voor jezelf.

Exterieur: Rondom het chalet ligt een verzorgde tuin die uitnodigt tot een ontspannen buitenleven, omringd door groen. Direct aan het chalet vind je een ruim terras met voldoende plek voor een comfortabele loungeset of een grote buitentafel. Perfect voor een ontbijt in de ochtendzon of een sfeervol diner op een lange zomeravond. Een groene haag biedt beschutting en zorgt voor optimale privacy, zodat je in alle rust kan genieten van je eigen plek in de natuur. Dankzij de eigen parkeerplaats staat de auto altijd dichtbij, wel zo handig!

Kenmerken:
Bouwjaar: 2015
Soort grond: eigen grond
Parkservicebijdrage peiljaar 2024: € 2.495,52 incl. btw
Restafval vergoeding per jaar: € 252,48,- incl. btw
Internet per jaar: € 300,- incl. btw
Cai per jaar: € 180,- incl. btw
Videma per jaar: € 51,- incl. btw
Gassoort: Propaangas
BTW van toepassing: nee
BTW belaste levering: nee
Huisdieren toegestaan: ja, maximaal 2
Inventaris: gemeubileerd en gestoffeerd
Verhuurmogelijkheden: ja, via de verhuurorganisatie van het park.
Inschrijving op dit adres en permanente bewoning zijn niet toegestaan.

Kaart

Kenmerken

Overdracht

Referentienummer
288
Vraagprijs
€ 122.500,- k.k.
Inrichting
Ja
Inrichting
Gemeubileerd
Status
Nieuw in verkoop
Aanvaarding
In overleg
Aangeboden sinds
Vrijdag 12 december 2025

Bouw

Type object
Woonhuis, bungalow, vrijstaande woning
Soort bouw
Bestaande bouw
Bouwperiode
2015
Dakbedekking
Bitumen
Type dak
Platdak
Isolatievormen
Dubbel glas
Muurisolatie
Vloerisolatie
Volledig geïsoleerd

Oppervlaktes en inhoud

Perceeloppervlakte
252 m²
Woonoppervlakte
44 m²
Inhoud
185 m³

Indeling

Aantal bouwlagen
1
Aantal kamers
3 (waarvan 2 slaapkamers)
Aantal badkamers
1

Locatie

Ligging
Aan park
Aan rustige weg
In bosrijke omgeving

Tuin

Type
Tuin rondom
Hoofdtuin
Ja
Heeft een achterom
Ja
Staat
Prachtig aangelegd

Energieverbruik

Energielabel
B

CV ketel

Warmtebron
Gas
Bouwjaar
2015
Combiketel
Ja
Eigendom
Eigendom

Uitrusting

Aantal parkeerplaatsen
1
Warm water
CV-ketel
Verwarmingssysteem
Centrale verwarming
Ventilatie methode
Mechanische ventilatie
Natuurlijke ventilatie
Badkamervoorzieningen
Inloopdouche
Toilet
Wasmachineaansluiting
Heeft airco
Ja
Heeft kabel-tv
Ja
Tuin aanwezig
Ja
Heeft ventilatie
Ja

Kadastrale gegevens

Kadastrale aanduiding
Ede A 1882
Perceeloppervlakte
252 m²
Omvang
Geheel perceel