Nieuw in verkoop:Dahliastraat 12, 1214 CS Hilversum - Foto
Nieuw in verkoop
+25

Dahliastraat 12 1214 CS Hilversum € 449.000,- k.k.

  • Woonhuis
  • 3 kamers
  • 2 slaapkamers
  • 1 badkamers
  • Bouwjaar 1905
  • 130 m² perceeloppervlakte
  • 77 m² gebruiksoppervlakte
  • C Energielabel C

Beschrijving

Nieuw in de verkoop: Dahiastraat 12 Hilversum.

In een rustig straatje vlakbij de leuke en gezellige Gijsbrecht van Amstelstraat gelegen te gekke en bijzonder karakteristieke woning met mooie originele details en diepe achtertuin.
De woning is in een keurige staat van onderhoud, gelegen in een heel fijn straatje en op loopafstand van winkels.

Indeling: voortuin, entree woning. Hal met meterkast.

Lichte voorkamer welke thans in gebruik is als eetkamer, zeer fraaie schuifseparatie met opbergmogelijkheid, fijne, lichte living met deur naar de achtertuin.

Weer terug in de hal bereik je het toilet, de trapkast en een bergkast. Aan de achterzijde ligt de fijne moderne keuken welke eveneens toegang biedt tot de royale achtertuin.

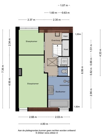
Eerste verdieping: overloop, 2e toilet, bergkast, separate kast met opstelplaats voor de wasmachine. Fijne royale slaapkamer gelegen aan de voorzijde, tweede slaapkamer aan de achterzijde. Moderne badkamer met inloopdouche, ligbad en wastafelmeubel.

Dan is er nog de heerlijke, bijna 15 meter diepe tuin met terras, veel groen en een tweede zitje aan de achterzijde.

Kortom, een bijzonder leuk en knus huis met een fijne tuin, dat keurig is onderhouden en is gelegen aan een heerlijk rustig straatje op loopafstand van ‘de Gijsbrecht’.

Bijzonderheden:
- bouwjaar 1905
- woonoppervlakte 77 m2
- perceeloppervlakte 130 m2
- de woning is voorzien van dubbel glas
- verwarming alsmede warm water middels c.v.-combiketel Nefit 2017
- energielabel C
- het betreft een keurige woning welke zo te betrekken is

Aanvaarding in overleg.

Kaart

Kenmerken

Overdracht

Referentienummer
292
Vraagprijs
€ 449.000,- k.k.
Status
Nieuw in verkoop
Aanvaarding
In overleg
Aangeboden sinds
Vrijdag 30 januari 2026

Bouw

Type object
Woonhuis, eengezinswoning, tussenwoning
Soort bouw
Bestaande bouw
Bouwperiode
1905
Dakbedekking
Dakpannen
Type dak
Samengesteld
Isolatievormen
Dakisolatie
Dubbel glas

Oppervlaktes en inhoud

Perceeloppervlakte
130 m²
Woonoppervlakte
77 m²
Inhoud
281 m³
Oppervlakte overige inpandige ruimten
3 m²

Indeling

Aantal bouwlagen
2
Aantal kamers
3 (waarvan 2 slaapkamers)
Aantal badkamers
1 (en 2 aparte toiletten)

Locatie

Ligging
Aan rustige weg
In woonwijk

Tuin

Type
Achtertuin
Hoofdtuin
Ja
Oriëntering
Noord west
Staat
Goed onderhouden
Tuin 2 - Type
Achtertuin
Tuin 2 - Oriëntering
Zuidoost
Tuin 2 - Staat
Goed onderhouden

Energieverbruik

Energielabel
C

CV ketel

CV ketel
Nefit HR
Warmtebron
Gas
Bouwjaar
2017
Combiketel
Ja
Eigendom
Eigendom

Uitrusting

Warm water
CV-ketel
Verwarmingssysteem
Centrale verwarming
Ventilatie methode
Mechanische ventilatie
Natuurlijke ventilatie
Badkamervoorzieningen
Douche
Ligbad
Wastafel
Heeft kabel-tv
Ja
Glasvezelaansluiting aanwezig
Ja
Tuin aanwezig
Ja
Heeft ventilatie
Ja

Kadastrale gegevens

Kadastrale aanduiding
Hilversum L 1099
Perceeloppervlakte
130 m²
Omvang
Geheel perceel
Eigendomsituatie
Eigen grond