Beschrijving
BEZICHTIGINGSMOGELIJKHEDEN:
OPEN HUIS: zaterdag 25 april 2026 tussen 11:00 en 13:00
OP AFSPRAAK: dinsdag 28 april 2026 tussen 13:00 en 19:00
In de groene en kindvriendelijke wijk Zuilenstein gelegen nette en lichte 5-kamer eengezinswoning met voortuin en zonnige achtertuin gelegen op het Zuidoosten.
De Fagotlaan ligt in een groene en kindvriendelijke woonwijk in Nieuwegein, op korte afstand van scholen, kinderopvang, sportvoorzieningen, speeltuinen, buurtwinkels en openbaar vervoer. Winkelcentrum City Plaza ligt op enkele minuten fietsen en biedt een uitgebreid aanbod aan winkels, horeca en voorzieningen. Recreatiegebieden zoals Park de Kokkebogaard, Fort Jutphaas, Nederlandse Plas en Park Oudegein bevinden zich in de directe omgeving.
Indeling: voortuin, berging, entree woning. Hal, meterkast en toilet.
Ruime en lichte woonkamer met toegang tot de tuin.
Aan de voorzijde is de nette, ruime keuken gelegen welke uitzicht biedt op het autovrije pad aan de voorzijde van de woning.
Eerste verdieping: overloop met bergkast, royale master bedroom gelegen aan de voorzijde, ruime en lichte badkamer welke eveneens is gelegen aan de voorzijde en welke is voorzien van een douche, wastafel en 2e toilet. Ruime 2e slaapkamer gelegen aan de achterzijde, 3e slaapkamer eveneens gelegen aan de achterzijde.
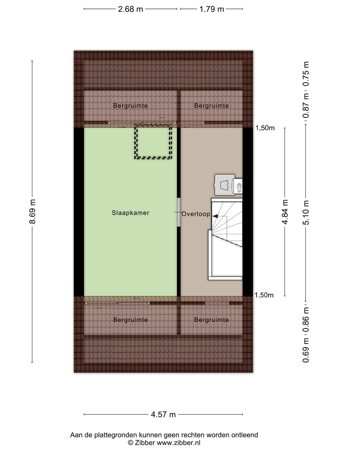
Tweede verdieping: vliering zolder met veel bergruimte, royale en lichte 4e slaapkamer met dakraam. Op de voorzolder is er naast de bergruimte de opstelplaats voor de c.v.-combiketel en de wasmachine en wasdroger.
De fijne en zonnige tuin is gelegen op het Zuidoosten.
Bijzonderheden:
- bouwjaar 1977
- woonoppervlakte 109 m2
- perceeloppervlakte 124 m2
- de woning is voorzien van dubbele beglazing, deels met kuststof kozijnen
- verwarming alsmede warm water middels c.v.-combiketel ca. 2017
- energielabel B
- de woning is de afgelopen jaren verhuurd geweest
Aanvaarding in overleg.