Verkocht onder voorbehoud:Van den Oosterkamperf 1, 3907 MG Veenendaal - Foto
Verkocht onder voorbehoud
+40

Van den Oosterkamperf 1 3907 MG Veenendaal € 625.000,- k.k.

  • Woonhuis
  • 7 kamers
  • 6 slaapkamers
  • 1 badkamers
  • Bouwjaar 2016
  • 210 m² perceeloppervlakte
  • 154 m² gebruiksoppervlakte
  • A Energielabel A

Beschrijving

Heerlijk gezinshuis in kindvriendelijke wijk – Van den Oosterkamperf 1, Veenendaal-Oost

Ben je op zoek naar een ruim, comfortabel en instapklaar familiehuis in een gezellige en kindvriendelijke buurt? Dan is deze royale hoekwoning (154 m²) in het populaire Veenendaal-Oost precies wat je zoekt!

Met 5 slaapkamers, een fijne werkkamer/praktijkruimte, een zonnige tuin én een eigen oprit is er genoeg ruimte voor het hele gezin. De woning ligt aan de rand van de wijk, vlak bij de Groene Grens: een prachtig natuurgebied waar je heerlijk kunt wandelen, spelen of fietsen. En in de wijk zelf? Overal leuke speeltuintjes, veilige straatjes en volop gezinnen met jonge kinderen. Hier voel je je zó thuis.

Wat maakt dit huis zo fijn?
- 154 m² woonoppervlakte
- 5 ruime slaapkamers + extra werkkamer/praktijkruimte
- grote tuin met veranda, berging én achterom
- moderne keuken en badkamer
- volledig geïsoleerd, energielabel A
- vloerverwarming én vloerkoeling
- 12 zonnepanelen én thuisaccu (ter overname)
- meerdere kamers met airconditioning
- nog een extra airco-unit binnen aan te sluiten op de buitenunit
- eigen oprit + voldoende parkeerruimte in de straat
- speeltuinen, scholen en winkels op loopafstand

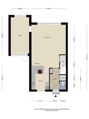
Indeling
Begane grond: Entree met toilet en bergkast, lichte woonkamer met schuifpui naar de tuin, moderne open keuken met bar en veel kastruimte. Aangrenzend vind je een extra kamer met eigen entree – ideaal als werkplek, hobbyruimte/praktijkruimte of chillplek voor de kinderen.

Eerste verdieping: 3 ruime slaapkamers (2 met airco) en een moderne uitgebreide badkamer met ligbad, inloopdouche, toilet en wastafelmeubel.
Tweede verdieping: 2 extra slaapkamers, een overloop met wasruimte en veel bergruimte. De kamer aan de achterzijde is voorzien van een dakkapel en airco – perfect als ouderslaapkamer.

Tuin
De achtertuin is ruim, zonnig en onderhoudsvriendelijk aangelegd. Je vindt er een fijne veranda, een berging en meerdere zitplekjes – perfect voor lange zomeravonden met familie en vrienden.

Locatie
Veenendaal-Oost is geliefd onder jonge gezinnen. Speeltuintjes op elke hoek, veilige fiets- en wandelpaden en volop ruimte om op te groeien. Binnen een paar minuten sta je in natuurgebied de Groene Grens of fiets je naar scholen, winkels en het centrum. Bovendien ben je zó onderweg: je rijdt in een paar minuten de A12 op en bent binnen no-time bij één van de twee treinstations van Veenendaal. Ideaal voor wie werkt buiten de stad of graag flexibel reist – alle kanten op!

Aanvaarding in overleg.

Kaart

Kenmerken

Overdracht

Referentienummer
283
Vraagprijs
€ 625.000,- k.k.
Status
Verkocht onder voorbehoud
Aanvaarding
In overleg
Aangeboden sinds
Donderdag 13 november 2025
Laatste wijziging
Vrijdag 28 november 2025

Bouw

Type object
Woonhuis, eengezinswoning, hoekwoning
Soort bouw
Bestaande bouw
Bouwperiode
2016
Dakbedekking
Dakpannen
Type dak
Zadeldak
Isolatievormen
Volledig geïsoleerd

Oppervlaktes en inhoud

Perceeloppervlakte
210 m²
Woonoppervlakte
154 m²
Inhoud
546 m³
Oppervlakte gebouwgebonden buitenruimte
10 m²

Indeling

Aantal bouwlagen
3
Aantal kamers
7 (waarvan 6 slaapkamers)
Aantal badkamers
1 (en 1 apart toilet)

Locatie

Ligging
Aan rustige weg
In woonwijk

Tuin

Type
Voortuin
Oriëntering
Noord west
Staat
Prachtig aangelegd
Tuin 2 - Type
Achtertuin
Tuin 2 - Hoofdtuin
Ja
Tuin 2 - Oriëntering
Zuidoost
Tuin 2 - Heeft een achterom
Ja
Tuin 2 - Staat
Prachtig aangelegd

Energieverbruik

Energielabel
A

Uitrusting

Warm water
Stadsverwarming
Verwarmingssysteem
Stadsverwarming
Vloerverwarming
Ventilatie methode
Mechanische ventilatie
Natuurlijke ventilatie
Badkamervoorzieningen
Douche
Ligbad
Toilet
Wastafelmeubel
Heeft kabel-tv
Ja
Glasvezelaansluiting aanwezig
Ja
Tuin aanwezig
Ja
Heeft schuur/berging
Ja
Heeft zonnepanelen
Ja
Heeft ventilatie
Ja

Kadastrale gegevens

Kadastrale aanduiding
Veenendaal K 7177
Perceeloppervlakte
210 m²
Omvang
Geheel perceel